НОБЛ СТРОЙ
Cтроим с благородным подходом

H100

Постирочная Кладовая Камин Цена по запросу
Двухэтажный дом
Полезная площадь — 123,07 м² Площадь гаража — 0 м² Минимальный размер участка — 16,10 x 19,26 м
4
2
0
Дом в стиле минимализма с продуманными деталями, современными технологиями и удобной планировкой. Энергоэффективность и комфорт для всей семьи создадут гармонию и уют. Идеальное пространство для вашей мечты о счастливой жизни.

Планировки

Планировка первого этажа
  • 0Полезная площадь

    63,10 (64,60) м²

  • 1Прихожая

    4,58 (6,08) м²

  • 2Коридор

    4,53 м²

  • 3Гостиная

    35,68 м²

  • 4Кладовая

    1,72 м²

  • 5Санузел

    3,44 м²

  • 6Кабинет

    9,68 м²

  • 7Котельная / Постирочная

    3,47 м²

  • T1Терраса

    7,88 м²

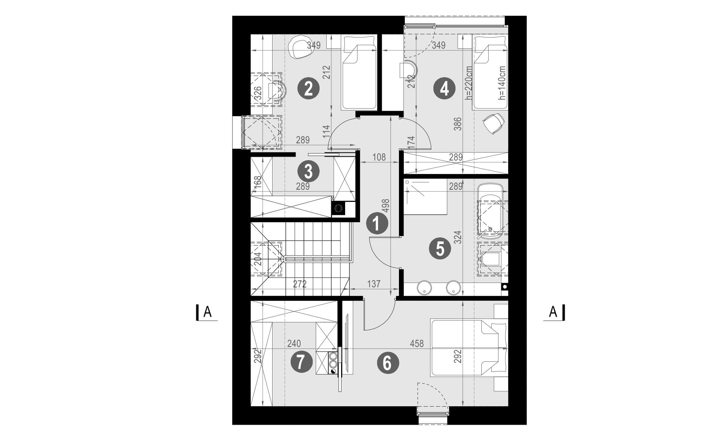
Планировка второго этажа
  • 0Полезная площадь

    60,02 (68,46) м²

  • 1Коридор + Лестница

    11,26 м²

  • 2Спальня

    9,15 (10,69) м²

  • 3Гардеробная

    3,75 (4,55) м²

  • 4Спальня

    10,60 (12,43) м²

  • 5Санузел

    7,81 (9,32) м²

  • 6Спальня

    11,99 (13,37) м²

  • 7Гардеробная

    5,46 (6,84) м²

Поперечный разрез
  • Высота здания

    8,19 м

  • Высота до карниза

    4,79 м

Фасады

Обзор 360°

Рекомендуемый минимальный размер участка

Дом не подходит по размерам вашего участка?

Мы с радостью подберем дом, который идеально впишется в ваши условия.

Оставьте заявку, и мы предложим дом, полностью соответствующий параметрам вашего участка и вашим пожеланиям.

Подбор земельного участка

У вас еще нет земельного участка?

Не беспокойтесь — мы поможем вам найти идеальный участок для вашего будущего дома.

Оставьте заявку, и мы подберем лучшее решение, учитывая все ваши пожелания и планы.

Техническая информация

Технико-экономические показатели
  • Полезная площадь

    123,12 м²

  • Площадь гаража

    -

  • Площадь полов (без учета гаража)

    133,06 м²

  • Площадь застройки

    91,10 м²

  • Общая площадь

    178,26 м²

  • Объем брутто

    618 м³

  • Высота здания

    8,22 м

  • Площадь крыши

    119,00 м²

  • Угол наклона кровли

    40°

  • Высота до карниза\края крыши

    4,82 м

  • Мин. размер участка

    16,08 x 19,26 м

  • Пятно застройки

    8,10 x 11,26 м

Энергоэффективность
  • Класс энергоэффективности

    A++

  • Сопротивление теплопередаче

    8.43 (м²•˚С)/Вт

Строительные технологии
  • Фундамент

    Проектирование фундамента осуществляется с учётом результатов геологических и геодезических изысканий.

  • Перекрытие

    Монолитное железобетонное.

  • Стены

    Двухслойные: керамический блок толщиной 25 см + утеплитель (экструдированный пенополистирол 20 см).

  • Крыша

    Плоская крыша, покрытая мембраной

  • Фасад

    Силиконовая штукатурка в сочетании с серым керамо-гранитом.

  • Отопление

    Газовый конденсационный котёл. Полы с водяным подогревом в гостиной, кухне, столовой, санузлах, коридоре и прихожей. Радиаторы или канальные радиаторы в остальных помещениях.

  • Вентиляция

    Механическая с рекуперацией тепла.

*Примечание: технико-экономические показатели могут отличаться от указанных на сайте, поскольку возможна замена материалов в рамках применяемых строительных технологий.

Описание

Современный минимализм

Этот дом — воплощение современного стиля, где каждая деталь продумана до мелочей. Лаконичные формы, чистые линии и тщательно подобранные материалы создают элегантный и функциональный облик, который подчеркнет ваш вкус и статус.

Энергоэффективность будущего

Мы уделили особое внимание энергоэффективности, внедрив передовые технологии теплоизоляции, вентиляции и инженерных систем. Благодаря этому вы сможете наслаждаться комфортом при минимальных затратах на энергоресурсы.

Пространство для жизни

Функциональная планировка дома обеспечивает удобное зонирование, максимальное естественное освещение и комфорт для всей семьи. Каждое решение направлено на создание гармоничного пространства, в котором будет приятно жить и отдыхать.

Почему выбирают нас?

Мы предлагаем не просто строительство, а создание вашего идеального пространства для жизни. Опытные архитекторы и строители учтут все ваши пожелания и предпочтения, чтобы ваша мечта о собственном доме стала реальностью. Наслаждайтесь каждым моментом жизни в гармонии с природой!

Выбирая дом, вы получаете не просто жилье, а современное пространство, где стиль, комфорт и практичность соединены в единое целое.

Готовы воплотить мечту о собственном доме?

Отправьте заявку прямо сейчас, и мы поможем вам начать строительство дома!

Этапы и цены строительства

Мы предлагаем поэтапное выполнение строительных работ, что позволит вам контролировать процесс и планировать бюджет.

Каждый вид работ выполняется специализированной бригадой, что гарантирует высокое качество и соблюдение сроков.

1 — Контур дома
4 месяцаЦена по запросу
Готовый контур дома для последующих инженерных и отделочных работ, обеспечивающий основу для комфортного и безопасного проживания.
ФундаментНесущие стены ПерекрытиеКрыша с кровельным покрытием Дымоходы и вентшахтыПерегородки Окна и наружные двери
2 — Инженерные работы
2 месяца+ Цена по запросуЦена по запросу
Надежные инженерные системы для комфортного проживания с эффективным отоплением, стабильным водоснабжением и качественной вентиляцией.
Штукатурка стен и откосовОтделка котельной ЭлектрикаВодоснабжениеОтопление Вентиляция Инженерное оборудованиеСтяжка полов
3 — Отделочные работы
3 месяца+ Цена по запросуЦена по запросу
Дом, полностью готовый к проживанию, с уютными и функциональными интерьерами, современными инженерными системами и качественной отделкой.
ТеплоизоляцияФасадПодшивка свесовВодосточная система Отделка помещенийСанфаянсОсветительные приборыМежкомнатные двериОтделка балконов и террас
*Примечание: цена на сайте носит исключительно информационный характер и не является публичной офертой. Итоговая стоимость и сроки выполнения работ могут быть скорректированы в связи с изменением цен на материалы, применением иных технологий, погодными условиями и условиями оплаты.

Отправьте заявку, чтобы начать строительство вашего дома уже сейчас!

Преимущества работы с нами

Персональный менеджер

На каждом этапе строительства вам будет доступен персональный менеджер. Он всегда ответит на ваши вопросы и поможет оперативно решить любые задачи.

Личный кабинет клиента

Отслеживайте прогресс строительства в реальном времени. Получайте фото и видеоотчёты, управляйте документами, контролируйте сроки и оплату в онлайн-сервисе.

Детализированная смета

Предоставляем подробную смету на материалы и работы. Фиксируем стоимость в договоре, обеспечивая прозрачность всех расходов на строительство.

Авторский и технический надзор

Контролируем каждый этап строительства. Следим за соответствием проекту и гарантируем высокое качество работ на всех этапах реализации.

Качественные материалы

Используем только проверенные материалы, соответствующие стандартам. Это гарантирует долговечность, безопасность и надёжные эксплуатационные характеристики.

Фото и видео отчёты

Обеспечиваем регулярные фото- и видеоматериалы о процессе строительства. Вы всегда будете в курсе выполнения всех этапов работ.

Исполнительная документация

Предоставляем полный комплект исполнительной документации. Это гарантирует точный учёт всех этапов и полную прозрачность процесса строительства.

Сдача объекта в срок

Строго соблюдаем все установленные сроки, указанные в графике. Выполняем работы точно по договорённостям и сдаём готовый объект своевременно.

Гарантия на дом 50 лет

Дома, построенные нами, служат десятилетиями. Мы предоставляем гарантию до 50 лет, подтверждая качество и долговечность строительства.

Допонительные услуги

Подбор земельных участков

Помогаем выбрать перспективные участки с учетом их инвестиционной привлекательности и возможностей развития.

Комплексные проектные работы

Разрабатываем архитектурные, инженерные и конструктивные проекты под индивидуальные требования.

Инженерные изыскания

Проводим изыскания для получения точных данных, необходимых для проектирования и строительства.

Разрешительная документация

Оказываем помощь в получении всех необходимых разрешений, строго соблюдая установленные нормы и требования.

Подключение коммуникаций

Организуем подключение всех внешних коммуникаций, обеспечивая своевременность и надежность.

Строительные работы

Выполняем строительство, монтаж инженерных систем и отделочные работы с гарантией качества.

Кадастровые работы

Осуществляем измерения, подготовку документации и постановку объектов на кадастровый учет.

Благоустройство территории

Проводим работы по благоустройству территории и созданию малых архитектурных форм.

Техническое обслуживание

Обеспечиваем контроль, профилактику и ремонт инженерных систем для безопасной эксплуатации дома.