НОБЛ СТРОЙ
Cтроим с благородным подходом

H127

Мастер спальня Постирочная Кладовая Крытая терраса Камин Цена по запросу
Двухэтажный дом с гаражом
Полезная площадь — 198,62 м² Площадь гаража — 41,7 м² Минимальный размер участка — 27,17 x 21,82 м
4
3
2
Дом в стиле минимализма с продуманными деталями, современными технологиями и удобной планировкой. Энергоэффективность и комфорт для всей семьи создадут гармонию и уют. Идеальное пространство для вашей мечты о счастливой жизни.

Планировки

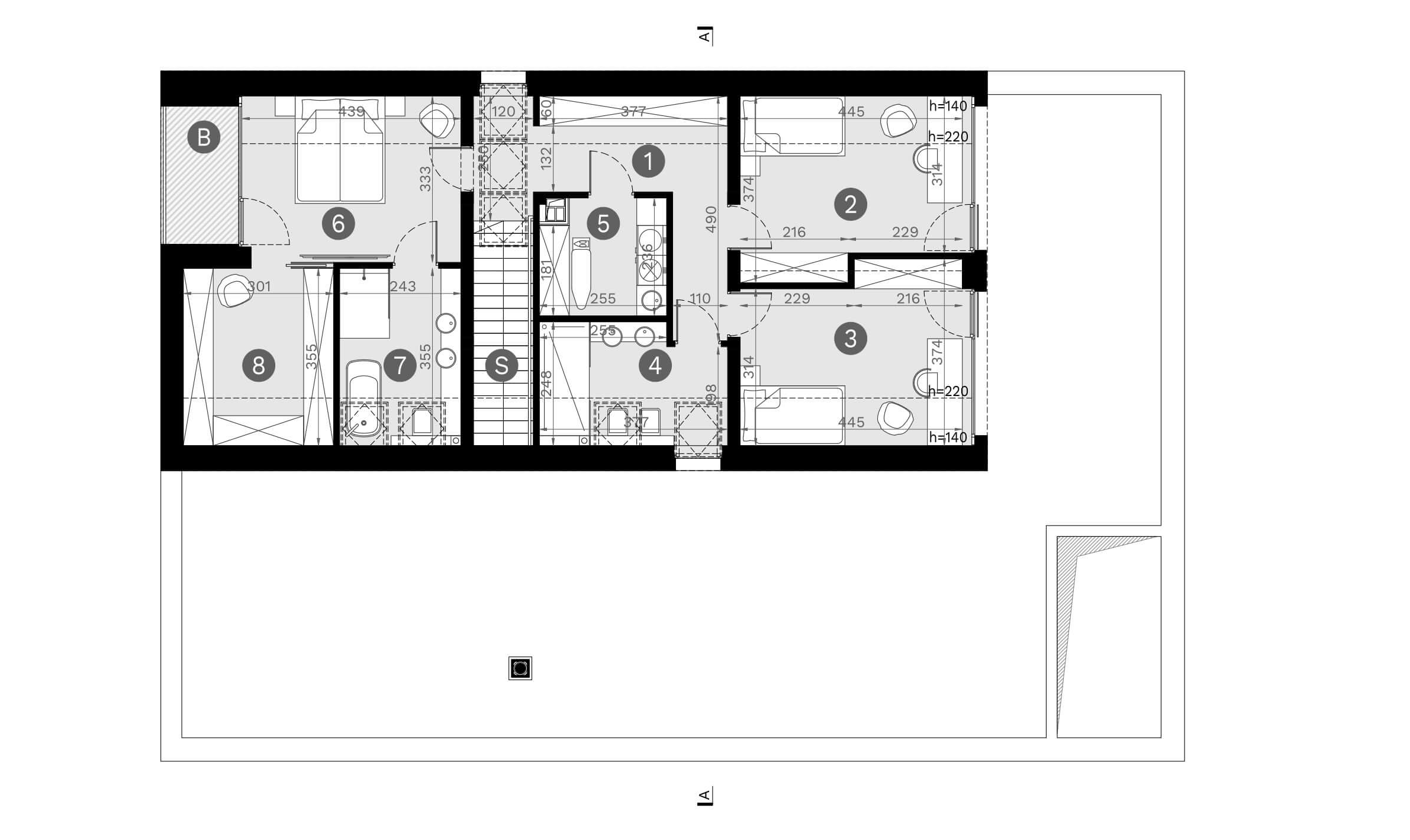
Планировка первого этажа
  • 0Полезная площадь

    119,13 (121,41) м²

  • 1Прихожая

    8,54 м²

  • 2Гардеробная

    6,78 м²

  • 3Гостиная

    31,11 м²

  • 4Столовая

    22,65 м²

  • 5Кухня

    14,42 м²

  • 6Кладовая

    2,21 м²

  • 7Коридор

    3,95 м²

  • 8Санузел

    4,87 м²

  • 9Кабинет

    15,37 м²

  • 10Котельная

    7,67 м²

  • 11Хоз. помещение

    1,56 (3,84) м²

  • GГараж

    41,70 м²

  • T1Терраса

    64,50 (53,32) м²

  • T2Терраса

    9,95 м²

Планировка второго этажа
  • 0Полезная площадь

    78,90 (91,90) м²

  • 1Коридор

    11,31 (13,70) м²

  • 2Спальня

    13,15 (15,27) м²

  • 3Спальня

    13,15 (15,27) м²

  • 4Санузел

    6,92 (8,70) м²

  • 5Постирочная

    5,69 м²

  • 6Спальня

    11,98 (13,99) м²

  • 7Санузел

    7,45 (8,59) м²

  • 8Гардеробная

    9,25 (10,69) м²

  • SЛестница

    5,70 м²

  • BБалкон

    3,38 м²

Поперечный разрез
  • Высота здания

    8,77 м

  • Высота до карниза

    5,41 м

Фасады

Обзор 360°

Рекомендуемый минимальный размер участка

Дом не подходит по размерам вашего участка?

Мы с радостью подберем дом, который идеально впишется в ваши условия.

Оставьте заявку, и мы предложим дом, полностью соответствующий параметрам вашего участка и вашим пожеланиям.

Подбор земельного участка

У вас еще нет земельного участка?

Не беспокойтесь — мы поможем вам найти идеальный участок для вашего будущего дома.

Оставьте заявку, и мы подберем лучшее решение, учитывая все ваши пожелания и планы.

Техническая информация

Технико-экономические показатели
  • Полезная площадь

    198,03 м²

  • Площадь гаража

    41,70 м²

  • Площадь полов (без учёта гаража)

    213,31 м²

  • Площадь застройки

    250,19 м²

  • Общая площадь

    333,73 м²

  • Объём брутто

    1265 м³

  • Высота здания

    8,77 м

  • Площадь крыши

    174,00 м²

  • Угол наклона кровли

    40°

  • Высота до карниза/края крыши

    5,40 м

  • Минимальные размеры участка

    21,84 x 27,51 м

  • Размеры здания

    13,84 x 20,51 м

Энергоэффективность
  • Класс энергоэффективности

    A++

  • Сопротивление теплопередаче

    10.71 (м²•˚С)/Вт

Строительные технологии
  • Фундамент

    Проектирование фундамента осуществляется с учётом результатов геологических и геодезических изысканий.

  • Перекрытие

    Монолитное железобетонное.

  • Стены

    Двухслойные: керамический блок толщиной 25 см + утеплитель (экструдированный пенополистирол 20 см /минеральная вата 16 см).

  • Крыша

    Двухскатная, с фальцевым покрытием.

  • Фасад

    Силиконовая штукатурка в сочетании с фасадной доской.

  • Отопление

    Газовый конденсационный котёл. Полы с водяным подогревом в гостиной, кухне, столовой, санузлах, коридоре и прихожей. Радиаторы или канальные радиаторы в остальных помещениях.

  • Вентиляция

    Механическая с рекуперацией тепла.

*Примечание: технико-экономические показатели могут отличаться от указанных на сайте, поскольку возможна замена материалов в рамках применяемых строительных технологий.

Описание

Современный минимализм

Этот дом — воплощение современного стиля, где каждая деталь продумана до мелочей. Лаконичные формы, чистые линии и тщательно подобранные материалы создают элегантный и функциональный облик, который подчеркнет ваш вкус и статус.

Энергоэффективность будущего

Мы уделили особое внимание энергоэффективности, внедрив передовые технологии теплоизоляции, вентиляции и инженерных систем. Благодаря этому вы сможете наслаждаться комфортом при минимальных затратах на энергоресурсы.

Пространство для жизни

Функциональная планировка дома обеспечивает удобное зонирование, максимальное естественное освещение и комфорт для всей семьи. Каждое решение направлено на создание гармоничного пространства, в котором будет приятно жить и отдыхать.

Почему выбирают нас?

Мы предлагаем не просто строительство, а создание вашего идеального пространства для жизни. Опытные архитекторы и строители учтут все ваши пожелания и предпочтения, чтобы ваша мечта о собственном доме стала реальностью. Наслаждайтесь каждым моментом жизни в гармонии с природой!

Выбирая дом, вы получаете не просто жилье, а современное пространство, где стиль, комфорт и практичность соединены в единое целое.

Готовы воплотить мечту о собственном доме?

Отправьте заявку прямо сейчас, и мы поможем вам начать строительство дома!

Этапы и цены строительства

Мы предлагаем поэтапное выполнение строительных работ, что позволит вам контролировать процесс и планировать бюджет. Каждый этап выполняется специализированной бригадой, что гарантирует высокое качество и соблюдение сроков.

Этап 1: Теплый контур

Стоимость: 8 300 000 руб.

Сроки: 4 месяца

Что входит:

  • Фундамент
  • Стены
  • Крыша
  • Наружние окна и двери
  • Вент-шахты и дымаходы
  • Перегородки

Результат: Готовый каркас дома для проведения инженерных и отделочных работ.

Этап 2: Инженерные работы

Стоимость: 2 300 000 руб.

Сроки: 2 месяца

Что входит:

  • Электрика
  • Водоснабжение
  • Отопление
  • Вентиляция

Результат: Надежные инженерные системы для комфортной жизни.

Этап 3: Отделочные работы

Стоимость: 4 400 000 руб.

Сроки: 3 месяца

Что входит:

  • Утепление
  • Фасад
  • Водосточная система
  • Чистовая отделка помещений
  • Отделка балконов и террас

Результат: Дом, полностью готовый к проживанию.

Отправьте заявку, чтобы начать строительство вашего дома уже сейчас!

Преимущества работы с нами

Персональный менеджер

На каждом этапе строительства вам будет доступен персональный менеджер. Он всегда ответит на ваши вопросы и поможет оперативно решить любые задачи.

Личный кабинет клиента

Отслеживайте прогресс строительства в реальном времени. Получайте фото и видеоотчёты, управляйте документами, контролируйте сроки и оплату в онлайн-сервисе.

Детализированная смета

Предоставляем подробную смету на материалы и работы. Фиксируем стоимость в договоре, обеспечивая прозрачность всех расходов на строительство.

Авторский и технический надзор

Контролируем каждый этап строительства. Следим за соответствием проекту и гарантируем высокое качество работ на всех этапах реализации.

Качественные материалы

Используем только проверенные материалы, соответствующие стандартам. Это гарантирует долговечность, безопасность и надёжные эксплуатационные характеристики.

Фото и видео отчёты

Обеспечиваем регулярные фото- и видеоматериалы о процессе строительства. Вы всегда будете в курсе выполнения всех этапов работ.

Исполнительная документация

Предоставляем полный комплект исполнительной документации. Это гарантирует точный учёт всех этапов и полную прозрачность процесса строительства.

Сдача объекта в срок

Строго соблюдаем все установленные сроки, указанные в графике. Выполняем работы точно по договорённостям и сдаём готовый объект своевременно.

Гарантия на дом 50 лет

Дома, построенные нами, служат десятилетиями. Мы предоставляем гарантию до 50 лет, подтверждая качество и долговечность строительства.

Допонительные услуги

Подбор земельных участков

Помогаем выбрать перспективные участки с учетом их инвестиционной привлекательности и возможностей развития.

Комплексные проектные работы

Разрабатываем архитектурные, инженерные и конструктивные проекты под индивидуальные требования.

Инженерные изыскания

Проводим изыскания для получения точных данных, необходимых для проектирования и строительства.

Разрешительная документация

Оказываем помощь в получении всех необходимых разрешений, строго соблюдая установленные нормы и требования.

Подключение коммуникаций

Организуем подключение всех внешних коммуникаций, обеспечивая своевременность и надежность.

Строительные работы

Выполняем строительство, монтаж инженерных систем и отделочные работы с гарантией качества.

Кадастровые работы

Осуществляем измерения, подготовку документации и постановку объектов на кадастровый учет.

Благоустройство территории

Проводим работы по благоустройству территории и созданию малых архитектурных форм.

Техническое обслуживание

Обеспечиваем контроль, профилактику и ремонт инженерных систем для безопасной эксплуатации дома.