НОБЛ СТРОЙ
Cтроим с благородным подходом

H85 DL

Крытая терраса Второй свет Цена по запросу
Двухэтажный дом
Полезная площадь — 27,34 м² Площадь гаража — 0 м² Минимальный размер участка — 14,91 x 12,36 м
2
1
0
Это проект современного дачного дома, который сочетает в себе функциональность и стильный дизайн. Экономичная постройка с антресолью подарит вам новый опыт отдыха на природе. Идеальное решение для тех, кто ищет уютное место для выходных вдали от городской суеты.

Планировки

Планировка этажа
  • 0Полезная площадь

    22,63 м²

  • 1Гостиная с мини кухней

    19,20 м²

  • 2Санузел

    3,43 м²

  • T1Терраса

    32,95 м²

  • T2Терраса

    16,80 м²

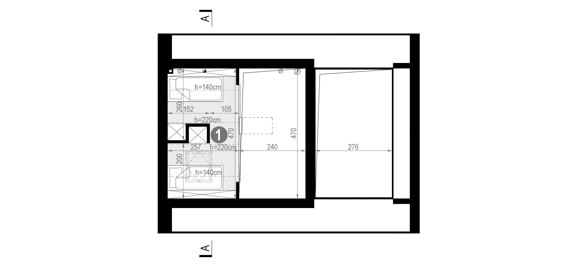
Планировка антресоли
  • 0Полезная площадь

    4,71 (11,92) м²

  • 1Антресоль

    4,71 (11,92) м²

Поперечный разрез
  • Высота здания

    5,96 м

  • Высота до карниза

    3,44 м

Фасады

Обзор 360°

Рекомендуемый минимальный размер участка

Дом не подходит по размерам вашего участка?

Мы с радостью подберем дом, который идеально впишется в ваши условия.

Оставьте заявку, и мы предложим дом, полностью соответствующий параметрам вашего участка и вашим пожеланиям.

Подбор земельного участка

У вас еще нет земельного участка?

Не беспокойтесь — мы поможем вам найти идеальный участок для вашего будущего дома.

Оставьте заявку, и мы подберем лучшее решение, учитывая все ваши пожелания и планы.

Техническая информация

Технико-экономические показатели
  • Полезная площадь

    27,34 м²

  • Площадь гаража

    -

  • Площадь полов (без учета гаража)

    34,55 м²

  • Площадь застройки

    34,70 м²

  • Общая площадь

    30,29 м²

  • Объем брутто

    154,42 м³

  • Высота здания

    5,96 м

  • Площадь крыши

    83,00 м²

  • Угол наклона кровли

    35°

  • Высота до карниза\края крыши

    3,44 м

  • Мин. размер участка

    14,91x12,36 м

  • Пятно застройки

    9,41x7,19 м

Энергоэффективность
  • Класс энергоэффективности

    A++

  • Сопротивление теплопередаче

    10.71 (м²•˚С)/Вт

Строительные технологии
  • Фундамент

    Проектирование фундамента осуществляется с учётом результатов геологических и геодезических изысканий.

  • Перекрытие

    Деревянное.

  • Стены

    Двухслойные: керамический блок толщиной 25 см + утеплитель (экструдированный пенополистирол 15 см).

  • Крыша

    Двухскатная с мансардным окном, отделана деревянной черепицей.

  • Фасад

    Деревянная черепица, тонкослойная силиконовая штукатурка в сочетании с фасадной древесиной.

  • Отопление

    Газовый конденсационный котёл. Полы с водяным подогревом.

  • Вентиляция

    Естественная циркуляция.

*Примечание: технико-экономические показатели могут отличаться от указанных на сайте, поскольку возможна замена материалов в рамках применяемых строительных технологий.

Описание

Проект 85 DL

Этот современный проект дачного дома создан для тех, кто ценит функциональность и стильный дизайн. Экономичное решение с антресолью полностью преобразует ваши представления об отдыхе на природе. Идеально подходит для любителей уюта и тишины, желающих проводить выходные на собственной территории, наслаждаясь любимым хобби вдали от городского шума. Дом спроектирован таким образом, чтобы обеспечить максимальный комфорт при минимальных затратах площади — его можно реализовать как в горной местности, так и вблизи водоёмов.

Особенности проекта

Проект компактного дома подойдет тем, кто мечтает о комфорте вне города. Несмотря на скромные размеры, в доме предусмотрено всё необходимое для полноценного отдыха.

Фасад выполнен из натурального дерева теплых оттенков, что позволяет дому органично вписаться в окружающую природу. Большая площадь остекления фасада создает эффект единства с окружающим миром и наполняет помещения естественным светом. Двухскатная крыша и наличие крытой террасы с кухонным блоком, грилем и обеденной зоной под открытым небом делают пребывание ещё более комфортным.

О стоимости строительства

Цена возведения дома площадью до 35 м² варьируется в зависимости от региона, выбранных строительных материалов и степени комплектации. Однако стоит отметить, что такие проекты, как правило, обойдутся дешевле больших домов. Наши специалисты тщательно прорабатывают каждый квадратный метр, обеспечивая оптимальное использование пространства и снижение затрат.

Преимущества небольших домов:
  • Более низкие первоначальные вложения.
  • Сокращение расходов на эксплуатацию: отопление, кондиционирование и электричество потребляют меньше ресурсов.

Планировка дома

Особое внимание уделено рациональному распределению пространства внутри дома. Справа от входа расположены кухня и ванная комната с душевой кабиной. Слева находится гостиная, плавно перетекающая в крытую террасу. Антресольный этаж обустроен под спальню, куда ведет компактная складная лестница. Здесь достаточно места для размещения двуспальной кровати либо двух отдельных спален с односпальными кроватями. Большое окно на антресоли добавляет света и воздуха, открывая живописный вид на окрестности.

Почему выбирают нас?

Мы предлагаем не просто строительство, а создание вашего личного уголка комфорта и спокойствия. Наши опытные архитекторы и строители помогут воплотить вашу мечту о даче в реальность, учитывая индивидуальные пожелания и предпочтения. Подарите себе возможность наслаждаться каждым моментом жизни на природе!
Готовы воплотить мечту о собственном доме?

Отправьте заявку прямо сейчас, и мы поможем вам начать строительство дома!

Этапы и цены строительства

Мы предлагаем поэтапное выполнение строительных работ, что позволит вам контролировать процесс и планировать бюджет.

Каждый вид работ выполняется специализированной бригадой, что гарантирует высокое качество и соблюдение сроков.

1 — Контур дома
4 месяцаЦена по запросу
Готовый контур дома для последующих инженерных и отделочных работ, обеспечивающий основу для комфортного и безопасного проживания.
ФундаментНесущие стены ПерекрытиеКрыша с кровельным покрытием Дымоходы и вентшахтыПерегородки Окна и наружные двери
2 — Инженерные работы
2 месяца+ Цена по запросуЦена по запросу
Надежные инженерные системы для комфортного проживания с эффективным отоплением, стабильным водоснабжением и качественной вентиляцией.
Штукатурка стен и откосовОтделка котельной ЭлектрикаВодоснабжениеОтопление Вентиляция Инженерное оборудованиеСтяжка полов
3 — Отделочные работы
3 месяца+ Цена по запросуЦена по запросу
Дом, полностью готовый к проживанию, с уютными и функциональными интерьерами, современными инженерными системами и качественной отделкой.
ТеплоизоляцияФасадПодшивка свесовВодосточная система Отделка помещенийСанфаянсОсветительные приборыМежкомнатные двериОтделка балконов и террас
*Примечание: цена на сайте носит исключительно информационный характер и не является публичной офертой. Итоговая стоимость и сроки выполнения работ могут быть скорректированы в связи с изменением цен на материалы, применением иных технологий, погодными условиями и условиями оплаты.

Отправьте заявку, чтобы начать строительство вашего дома уже сейчас!

Преимущества работы с нами

Персональный менеджер

На каждом этапе строительства вам будет доступен персональный менеджер. Он всегда ответит на ваши вопросы и поможет оперативно решить любые задачи.

Личный кабинет клиента

Отслеживайте прогресс строительства в реальном времени. Получайте фото и видеоотчёты, управляйте документами, контролируйте сроки и оплату в онлайн-сервисе.

Детализированная смета

Предоставляем подробную смету на материалы и работы. Фиксируем стоимость в договоре, обеспечивая прозрачность всех расходов на строительство.

Авторский и технический надзор

Контролируем каждый этап строительства. Следим за соответствием проекту и гарантируем высокое качество работ на всех этапах реализации.

Качественные материалы

Используем только проверенные материалы, соответствующие стандартам. Это гарантирует долговечность, безопасность и надёжные эксплуатационные характеристики.

Фото и видео отчёты

Обеспечиваем регулярные фото- и видеоматериалы о процессе строительства. Вы всегда будете в курсе выполнения всех этапов работ.

Исполнительная документация

Предоставляем полный комплект исполнительной документации. Это гарантирует точный учёт всех этапов и полную прозрачность процесса строительства.

Сдача объекта в срок

Строго соблюдаем все установленные сроки, указанные в графике. Выполняем работы точно по договорённостям и сдаём готовый объект своевременно.

Гарантия на дом 50 лет

Дома, построенные нами, служат десятилетиями. Мы предоставляем гарантию до 50 лет, подтверждая качество и долговечность строительства.

Допонительные услуги

Подбор земельных участков

Помогаем выбрать перспективные участки с учетом их инвестиционной привлекательности и возможностей развития.

Комплексные проектные работы

Разрабатываем архитектурные, инженерные и конструктивные проекты под индивидуальные требования.

Инженерные изыскания

Проводим изыскания для получения точных данных, необходимых для проектирования и строительства.

Разрешительная документация

Оказываем помощь в получении всех необходимых разрешений, строго соблюдая установленные нормы и требования.

Подключение коммуникаций

Организуем подключение всех внешних коммуникаций, обеспечивая своевременность и надежность.

Строительные работы

Выполняем строительство, монтаж инженерных систем и отделочные работы с гарантией качества.

Кадастровые работы

Осуществляем измерения, подготовку документации и постановку объектов на кадастровый учет.

Благоустройство территории

Проводим работы по благоустройству территории и созданию малых архитектурных форм.

Техническое обслуживание

Обеспечиваем контроль, профилактику и ремонт инженерных систем для безопасной эксплуатации дома.