НОБЛ СТРОЙ
Cтроим с благородным подходом

M744 D G1

Постирочная Крытая терраса Камин Цена по запросу
Двухэтажный дом с гаражом
Полезная площадь — 127,39 м² Площадь гаража — 21,6 м² Минимальный размер участка — 25,10 x 28,55 м
3
2
1
Уникальное сочетание современных технологий и классических форм – вот что отличает проект 80/G2. Жилая зона и гараж объединены стильной перголой, придающей конструкции легкость и воздушность. Просторные комнаты с большими окнами наполняют дом естественным светом и открывают виды на окружающую природу. Продуманная внутренняя планировка включает в себя кухню со столовой и уютные спальни, делая этот дом идеальным выбором для комфортной семейной жизни.

Планировки

Планировка первого этажа
  • 1Полезная площадь

    93,92 (96,63)м²

  • 1Прихожая

    3,24м²

  • 2Гардеробная

    3,28м²

  • 3Кладовая

    2,55м²

  • 4Кухня

    10,12м²

  • 5Гостиная — Столовая

    33,82м²

  • 6Котельная — постирочная

    6,23 (6,23)м²

  • 7Кабинет

    10,83м²

  • 8Санузел

    4,16м²

  • 9Кладовая

    7,38м²

  • 10Коридор

    12,31 (15,02)м²

  • TТерраса

    36,30м²

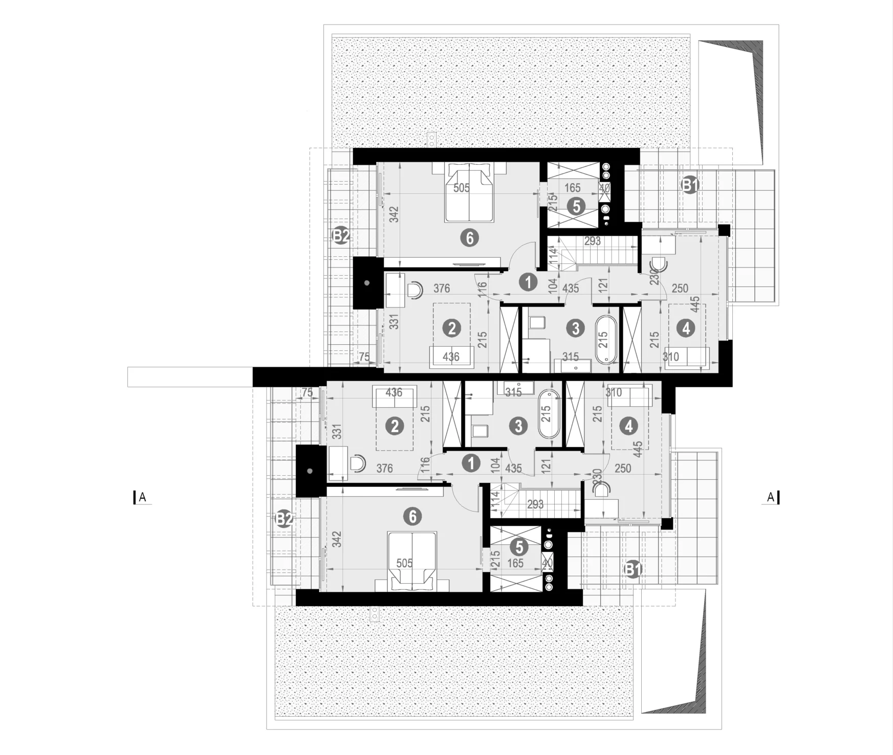
Планировка второго этажа
  • 1Полезная площадь

    61,70м²

  • 1Коридор

    13,64м²

  • 2Спальня

    10,09м²

  • 3Спальня

    10,50м²

  • 4Спальня

    14,60м²

  • 5Гардеробная

    2,90м²

  • 6Санузел

    5,19м²

  • 7Санузел

    4,78м²

  • TТерраса

    52,40м²

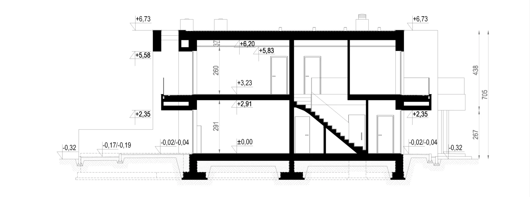
Поперечный разрез
  • Высота здания

    7,12м

Фасады

Обзор 360°

Рекомендуемый минимальный размер участка

Дом не подходит по размерам вашего участка?

Мы с радостью подберем дом, который идеально впишется в ваши условия.

Оставьте заявку, и мы предложим дом, полностью соответствующий параметрам вашего участка и вашим пожеланиям.

Подбор земельного участка

У вас еще нет земельного участка?

Не беспокойтесь — мы поможем вам найти идеальный участок для вашего будущего дома.

Оставьте заявку, и мы подберем лучшее решение, учитывая все ваши пожелания и планы.

Техническая информация

Технико-экономические показатели
  • Полезная площадь

    103,37м²

  • Площадь гаража

    -

  • Площадь полов (без учета гаража)

    103,37м²

  • Площадь застройки

    132,10м²

  • Общая площадь

    131,25м²

  • Объем брутто

    708м³

  • Высота здания

    6,75м

  • Площадь крыши

    160,00м²

  • Угол наклона кровли

    35°

  • Высота до карниза\края крыши

    3,98м

  • Мин. размер участка

    24,87x15,94м

  • Мин. размер участка (адап.)

    24,57x15,94м

  • Пятно застройки

    19,50x9,60м

Энергоэффективность
  • Класс энергоэффективности

    A++

  • Сопротивление теплопередаче

    10.71 (м²•˚С)/Вт

Строительные технологии
  • Фундамент

    Проектирование фундамента осуществляется с учётом результатов геологических и геодезических изысканий.

  • Перекрытие

    Монолитное железобетонное.

  • Стены

    Двухслойные: керамический блок толщиной 25 см + утеплитель (экструдированный пенополистирол 20 см /минеральная вата 16 см).

  • Крыша

    Двухскатная, с фальцевым покрытием.

  • Фасад

    Силиконовая штукатурка в сочетании с фасадной доской.

  • Отопление

    Газовый конденсационный котёл. Полы с водяным подогревом в гостиной, кухне, столовой, санузлах, коридоре и прихожей. Радиаторы или канальные радиаторы в остальных помещениях.

  • Вентиляция

    Механическая с рекуперацией тепла.

Описание

Современный комфорт с нотками традиций

80/G2 — это уникальный проект, воплощающий гармоничное сочетание современных решений и традиционных форм. Основная особенность дома — уникальная композиция, включающая две функциональные части: жилую зону и гараж, соединенные стильной крытой перголой. Пергола, эффектно выступающая за фасад здания и поддерживаемая единственной ажурной опорой, придает конструкции легкость, создавая впечатление, будто она парит в воздухе.

Архитектурные решения

Дом строится на простых, лаконичных формах: жилую часть покрывает классическая двускатная крыша, тогда как над гаражом выполнена плоская крыша, плавно переходящая в перголу. Деревянная отделка фасада создает гармонию с природным окружением и подчеркивает близость к ландшафту. Дневная зона с двухэтажным остеклением открывает широкий панорамный вид на сад и террасу, обеспечивая максимальное естественное освещение.

Функциональная планировка

Внутреннее пространство дома 80/G2 разработано с учетом комфорта и
уюта. Входная зона располагается в центре первого этажа и ведет в
открытую дневную часть, включающую просторную кухню с кладовой,
столовую и гостиную. Из этой зоны открывается живописный вид на
террасу благодаря большим панорамным окнам.

В противоположной части дома размещена приватная зона с двумя
спальнями, что позволяет создать тихое и уединенное пространство для
отдыха. Дом дополнен двумя ванными комнатами: большая ванная с
прачечной и гостевая, доступная из дневной зоны.

Идеальный дом для современной семьи

Проект 80/G2 объединяет новаторские архитектурные идеи с уютом и продуманной функциональностью, создавая комфортное и эстетичное пространство для жизни.
Готовы воплотить мечту о собственном доме?

Отправьте заявку прямо сейчас, и мы поможем вам начать строительство дома!

Этапы и цены строительства

Мы предлагаем поэтапное выполнение строительных работ, что позволит вам контролировать процесс и планировать бюджет. Каждый этап выполняется специализированной бригадой, что гарантирует высокое качество и соблюдение сроков.

Этап 1: Теплый контур

Стоимость: 8 300 000 руб.

Сроки: 4 месяца

Что входит:

  • Фундамент
  • Стены
  • Крыша
  • Наружние окна и двери
  • Вент-шахты и дымаходы
  • Перегородки

Результат: Готовый каркас дома для проведения инженерных и отделочных работ.

Этап 2: Инженерные работы

Стоимость: 2 300 000 руб.

Сроки: 2 месяца

Что входит:

  • Электрика
  • Водоснабжение
  • Отопление
  • Вентиляция

Результат: Надежные инженерные системы для комфортной жизни.

Этап 3: Отделочные работы

Стоимость: 4 400 000 руб.

Сроки: 3 месяца

Что входит:

  • Утепление
  • Фасад
  • Водосточная система
  • Чистовая отделка помещений
  • Отделка балконов и террас

Результат: Дом, полностью готовый к проживанию.

Отправьте заявку, чтобы начать строительство вашего дома уже сейчас!

Преимущества работы с нами

Персональный менеджер

На каждом этапе строительства вам будет доступен персональный менеджер. Он всегда ответит на ваши вопросы и поможет оперативно решить любые задачи.

Личный кабинет клиента

Отслеживайте прогресс строительства в реальном времени. Получайте фото и видеоотчёты, управляйте документами, контролируйте сроки и оплату в онлайн-сервисе.

Детализированная смета

Предоставляем подробную смету на материалы и работы. Фиксируем стоимость в договоре, обеспечивая прозрачность всех расходов на строительство.

Авторский и технический надзор

Контролируем каждый этап строительства. Следим за соответствием проекту и гарантируем высокое качество работ на всех этапах реализации.

Качественные материалы

Используем только проверенные материалы, соответствующие стандартам. Это гарантирует долговечность, безопасность и надёжные эксплуатационные характеристики.

Фото и видео отчёты

Обеспечиваем регулярные фото- и видеоматериалы о процессе строительства. Вы всегда будете в курсе выполнения всех этапов работ.

Исполнительная документация

Предоставляем полный комплект исполнительной документации. Это гарантирует точный учёт всех этапов и полную прозрачность процесса строительства.

Сдача объекта в срок

Строго соблюдаем все установленные сроки, указанные в графике. Выполняем работы точно по договорённостям и сдаём готовый объект своевременно.

Гарантия на дом 50 лет

Дома, построенные нами, служат десятилетиями. Мы предоставляем гарантию до 50 лет, подтверждая качество и долговечность строительства.

Допонительные услуги

Подбор земельных участков

Помогаем выбрать перспективные участки с учетом их инвестиционной привлекательности и возможностей развития.

Комплексные проектные работы

Разрабатываем архитектурные, инженерные и конструктивные проекты под индивидуальные требования.

Инженерные изыскания

Проводим изыскания для получения точных данных, необходимых для проектирования и строительства.

Разрешительная документация

Оказываем помощь в получении всех необходимых разрешений, строго соблюдая установленные нормы и требования.

Подключение коммуникаций

Организуем подключение всех внешних коммуникаций, обеспечивая своевременность и надежность.

Строительные работы

Выполняем строительство, монтаж инженерных систем и отделочные работы с гарантией качества.

Кадастровые работы

Осуществляем измерения, подготовку документации и постановку объектов на кадастровый учет.

Благоустройство территории

Проводим работы по благоустройству территории и созданию малых архитектурных форм.

Техническое обслуживание

Обеспечиваем контроль, профилактику и ремонт инженерных систем для безопасной эксплуатации дома.